• 2nd floor Professional Offices
  • Rental Information
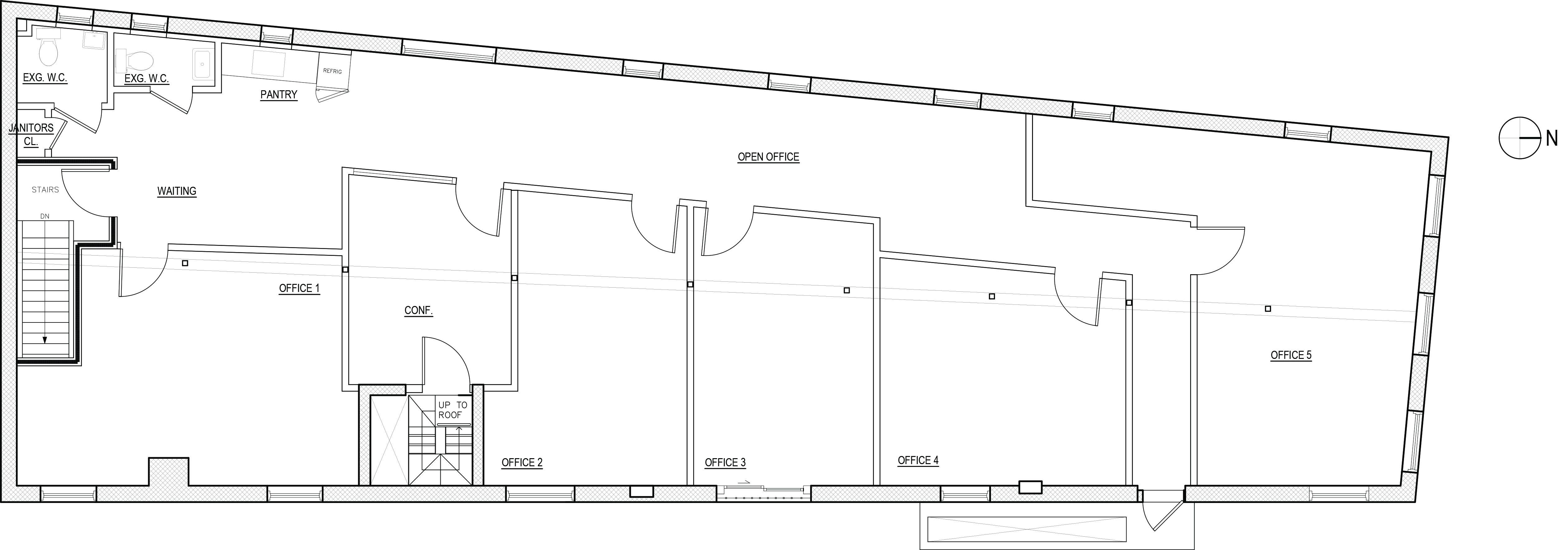
  • Blueprint Floor Plan
  • Views from the Property
  • Office Space 1
  • Office Space 2
  • Office Space 3
  • Office Space 4
  • Office Space 5 (occupied)
  • Photos of Common Areas
  • Building Exterior
  • Transportation
  • Contact
21 Dunham Place
  • 2nd floor Professional Offices
  • Rental Information
  • Blueprint Floor Plan
  • Views from the Property
  • Office Space 1
  • Office Space 2
  • Office Space 3
  • Office Space 4
  • Office Space 5 (occupied)
  • Photos of Common Areas
  • Building Exterior
  • Transportation
  • Contact

Blueprint Floor Plan

↑Back to Top